![]()
De bouwprojecten Borneo en Solano vertegenwoordigen een nieuwe visie op comfortabel en toegankelijk wonen. Met in totaal 64 appartementen bieden deze gebouwen van Area een thuisbasis voor een diverse mix van bewoners. Gepland voor oplevering in het eerste kwartaal van 2024, zijn Borneo en Solano het toonbeeld van moderne levensloopbestendige architectuur. De warme, hechte gemeenschap waar men omkijkt naar elkaar wordt ondersteund door Butterfly Effect en versterkt door de activiteiten in het Ontmoetingscentrum.
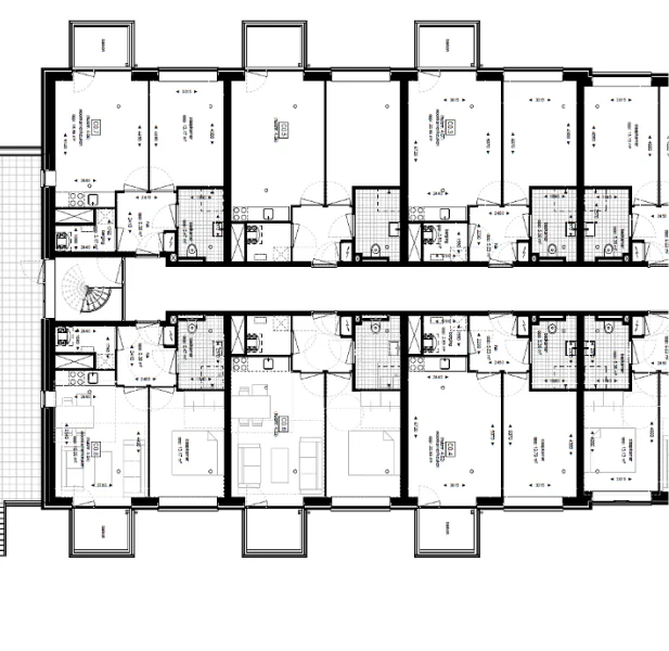
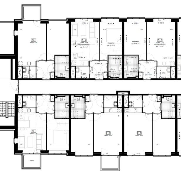
Solano staat voor een intieme woonervaring met 50 vierkante meter aan ruimte, perfect voor individuen of koppels. Elk appartement is slim ontworpen met één slaapkamer, een inpandige berging en, voor sommige woningen, een eigen balkon. Met huurprijzen variërend van €550 tot €650 exclusief servicekosten, biedt Solano betaalbare kwaliteit in een levendige buurt.
Gebouw Borneo biedt een vergelijkbare opzet met appartementen van circa 50 vierkante meter, elk met één slaapkamer en een praktische inpandige berging. Elk appartement geniet van een balkon dat een privé buitenruimte biedt. Met een uniforme huurprijs van €600 exclusief servicekosten, combineert Borneo comfort met toegankelijkheid.
De woningen van Borneo en Salano zijn reeds verhuurd. Bekijk daarom ook de andere sociale huurwoningen op het Kloosterkwartier.
Om als woningzoekende geregistreerd te staan, schrijft u zich in op www.onshuiz.nl. Wilt u op de hoogte blijven van de laatste ontwikkelingen en nieuws rondom Borneo, Solano of de overige projecten? Schrijf u dan in en blijf op de hoogte van deze levendige gemeenschap.
Het Moederhuis, de voormalige thuishaven van de Zusters Franciscanessen, wordt met respect voor zijn rijke geschiedenis getransformeerd tot 50 moderne sociale huurappartementen. Deze unieke woningen, die veelal onder de huurgrenstoeslag vallen, bieden een harmonieuze mix voor diverse doelgroepen. De verbouwing, die start in 2024, belooft het Moederhuis nieuw leven in te blazen als een inclusieve woonomgeving.
Fioretti Wonen vertegenwoordigt een unieke visie op samenleven met zorg. Hier vinden zelfstandig wonende bewoners met een zorgindicatie een warme en ondersteunende gemeenschap. Met 6 studio's en 30 appartementen, elk voorzien van een ruim balkon op het oosten of westen, biedt Fioretti een veilig en zorgzaam thuis, waar aandacht voor elkaar in de kern van het samenwonen ligt.
La Verna en Rivo Torto bieden samen 64 sociale appartementen die modern wooncomfort met een eerbetoon aan het verleden combineren. Gebouwd op palen bieden deze gebouwen een unieke doorkijk naar het groene park, een ontwerp dat zowel het landschap als de historische lindeboom in ere laat.
San Rufino, dat de naam draagt van de plek waar Franciscus vaak preekte en waar ook de heilige Clara van Assisi werd gedoopt, is een stralend voorbeeld van een gemeenschap die diversiteit en verbondenheid viert. Met de appartementen reeds allemaal verkocht, weerspiegelt San Rufino de aantrekkingskracht van zijn locatie – een thuis voor een levendig en gemengd gezelschap, variërend van enthousiaste twintigers tot wijze tachtigers.





